Bakos Zsuzsanna - BakosLak Ingatlan

KAPCSOLAT
Bakos Zsuzsanna


+36 20 974

zsuzsanna.bakos@

Az időpont kérés naptár ikonja
IDŐPONTOT KÉREK
A visszahívás kérés telefon ikonja egy azt körbe ölelő nyíllal
VISSZAHÍVÁST KÉREK
Ajánlom egy ismerősömnek ikon
AJÁNLOM EGY ISMERŐSÖMNEK
Facebook megosztás ikon
MEGOSZTÁS

KAPCSOLATFELVÉTEL

Küldés

Az üzenetet sikeresen elküldtük!
Hiba történt!
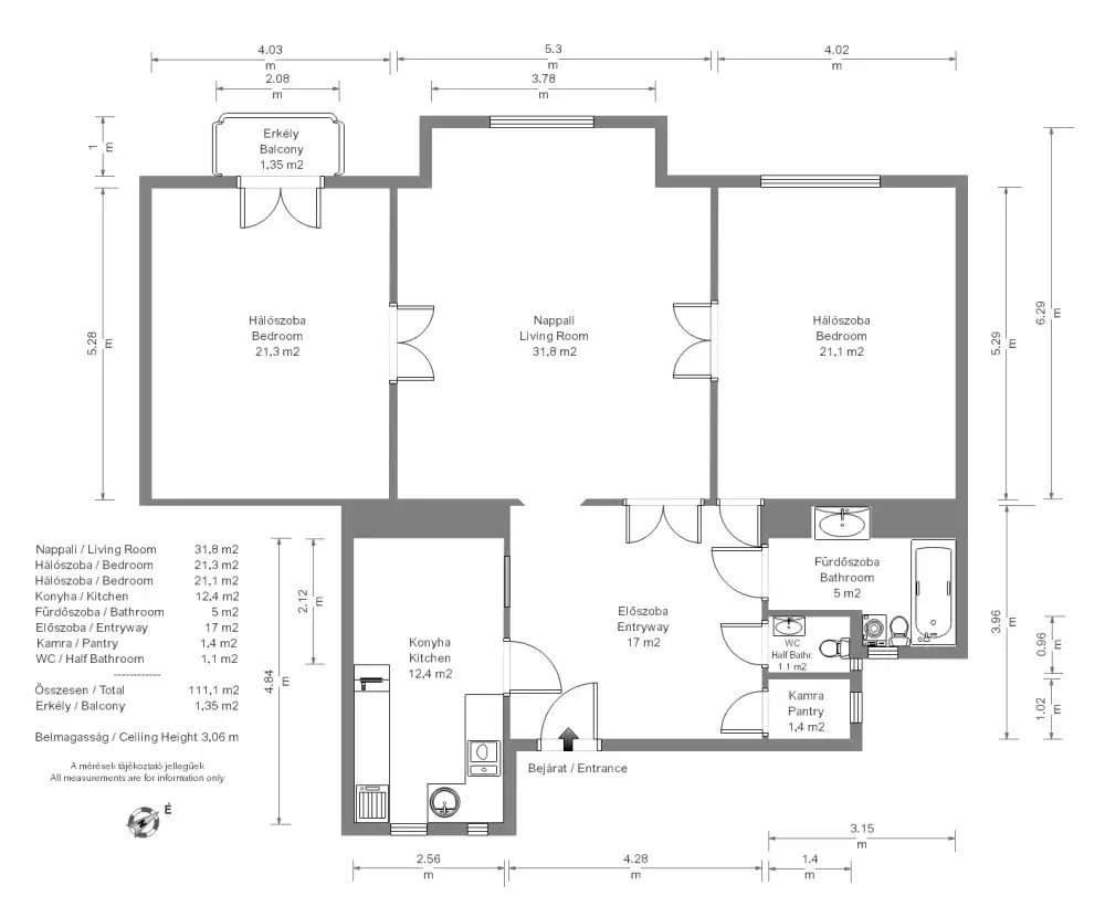
INGATLAN ADATAI

Ingatlan jellege

téglalakás

Belső terület

120 m²

Tájolás

északnyugat

Építési állapot

használt

Építési mód

tégla

Szobák száma

3 szoba

Szobák elhelyezkedése

egybenyílóak

Bútorozottság

igen

Erkély

3 m²

Emelet

2.

Épület szintje

4.

Épült

kb. 1950

Lift

van

Ingatlan állapot

kívül: felújított
belül: felújított

Fűtés

cirko

Komfort

duplakomfort

Kilátás

utcára

Energetika

nincs megadva

Háziállat hozható?

nem hozható

Az időpont kérés naptár ikonja
HTML
Az időpont kérés naptár ikonja
PDF
Kiadó téglalakás
Ingatlan azonosító:
1395_bl

Budapest, II. kerület, Országút, Buday László u.

Bérleti díj

431 E Ft/hó
(1.200 €/hó)

Szobák

3 szoba

Emelet

2

Terület

120 m²
INGATLAN LEÍRÁSA
Rózsadomb Dunához közeli részén, Margit-szigettől néhány perc sétára, Mechwart ligetnél liftes ház első emeletén frissen, igényesen felújított, gépesített, tágas 3 szobás modern bútorokkal bútorozott lakás minimum egy évre kiadó. Külön étkezős konyha, kádas fürdőszoba wc-vel, vendég wc, kamra, 3 tágas szoba, melyből az egyikhez erkély tartozik. 2 havi kaució szükséges.

INGATLAN ADATAI

Ingatlan jellege
téglalakás
Belső terület
120 m²
Tájolás
északnyugat
Építési állapot
használt
Építési mód
tégla
Szobák száma
3 szoba
Szobák elhelyezkedése
egybenyílóak
Bútorozottság
igen
Erkély
3 m²
Emelet
2.
Épület szintje
4.
Épült
kb. 1950
Lift
van
Ingatlan állapot
kívül: felújított
belül: felújított
Fűtés
cirko
Komfort
duplakomfort
Kilátás
utcára
Energetika
nincs megadva
Háziállat hozható?
nem hozható
TÉRKÉP

Budapest, II. kerület, Országút, Buday László u.

KAPCSOLAT
Bakos Zsuzsanna
Bakos Zsuzsanna


+36 20 974 0571

zsuzsanna.bakos@t-online.hu

KAPCSOLAT
Bakos Zsuzsanna

+36 20 974

zsuzsanna.bakos@

Az időpont kérés naptár ikonja
IDŐPONTOT KÉREK
A visszahívás kérés telefon ikonja egy azt körbe ölelő nyíllal
VISSZAHÍVÁST KÉREK
Ajánlom egy ismerősömnek ikon
AJÁNLOM EGY ISMERŐSÖMNEK
Facebook megosztás ikon
MEGOSZTÁS

KAPCSOLATFELVÉTEL

Küldés

Az üzenetet sikeresen elküldtük!
Hiba történt!
INGATLAN ADATAI

Ingatlan jellege

téglalakás

Belső terület

120 m²

Tájolás

északnyugat

Építési állapot

használt

Építési mód

tégla

Szobák száma

3 szoba

Szobák elhelyezkedése

egybenyílóak

Bútorozottság

igen

Erkély

3 m²

Emelet

2.

Épület szintje

4.

Épült

kb. 1950

Lift

van

Ingatlan állapot

kívül: felújított
belül: felújított

Fűtés

cirko

Komfort

duplakomfort

Kilátás

utcára

Energetika

nincs megadva

Háziállat hozható?

nem hozható

Az időpont kérés naptár ikonja
HTML
Az időpont kérés naptár ikonja
PDF
Budapest, II. kerület - Országút
Budapest, II. kerület - Országút
Budapest, II. kerület - Országút
Budapest, II. kerület - Országút
Budapest, II. kerület - Országút
Budapest, II. kerület - Országút
Budapest, II. kerület - Országút
Budapest, II. kerület - Országút
Budapest, II. kerület - Országút
Budapest, II. kerület - Országút
Budapest, II. kerület - Országút
Budapest, II. kerület - Országút
Budapest, II. kerület - Országút
Budapest, II. kerület - Országút
Budapest, II. kerület - Országút
Budapest, II. kerület - Országút
Budapest, II. kerület - Országút